当前位置: 首页 > 房产资讯 > 虹桥天地200平 精装带家具办公室出租
项目参数
| 竣工时间 | 总楼层 | 暂无数据 | 等级 | 甲级 | |
| 开发商 | 暂无数据 | 物业公司 | 上海丰诚物业管理有限公司 | 物业费 | 33元/㎡月 | 
| 停车位 | 1200 | 车位费 | 1000元/月 | 电梯配置 | 客梯4部,货梯1部,消防梯1部 | 
| 净层高 | 3 | 建筑面积 | 12000平方米 | 得房率 | 80% | 
| 空调开放时间 | 暂无数据 | 周边公交 | 暂无数据 | 周边地铁 | 地铁2/10/17号线虹桥火车站站 | 
2022-03-16 10:40:30 点击数:289 陆老师
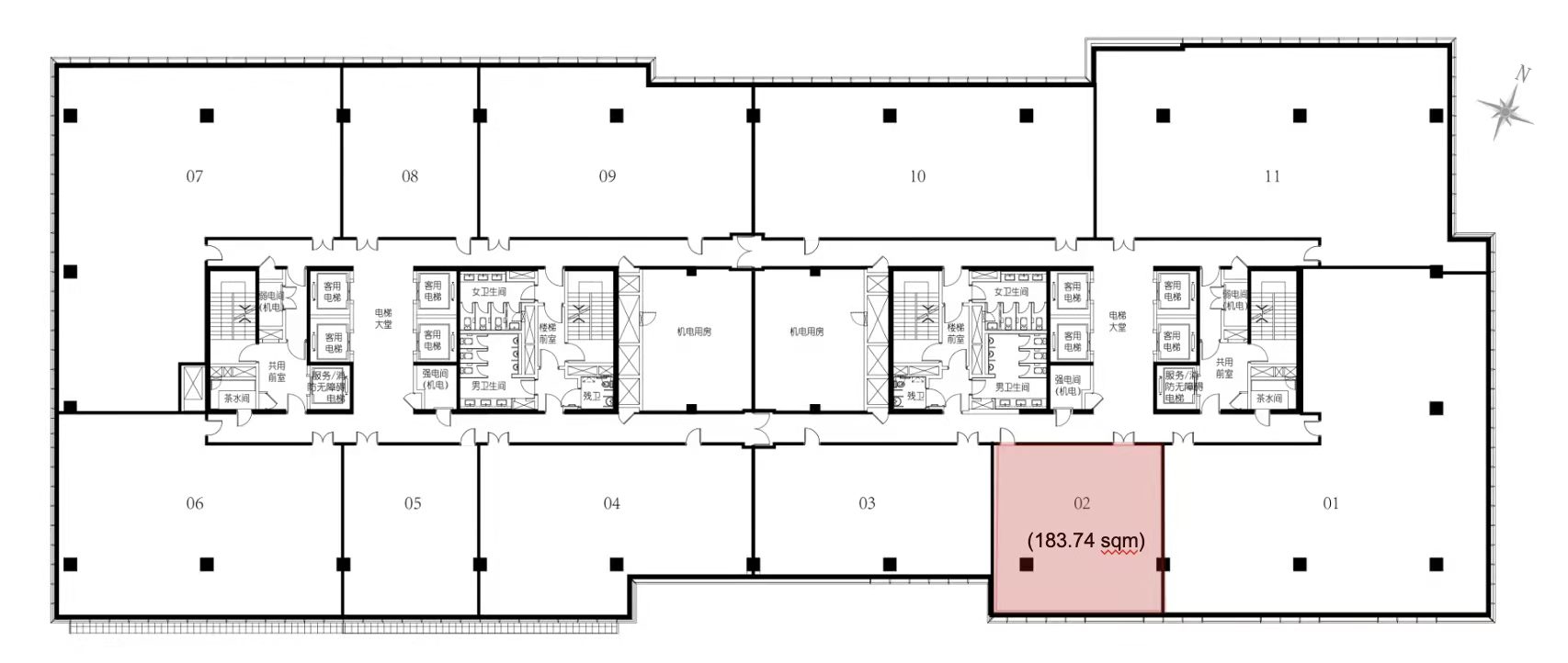
虹桥天地T3(建筑面积183.74平米)
租金报价:7.5元/平米(不含税)
物业管理费:31.14元/平米/月(不含税)
停车费:1,000元/月/个
交付标准:带装修(可复原)






转载声明:转载本站上海办公室租售网原创文字内容、图片、视频和全景看房,请注明出处和作者。
免责声明:本站转载的上海写字楼租赁相关内容均注明出处和作者,但并不意味着赞同其观点或证实其内容的真实性,如转载内容涉及版权事宜,请联系本站删除。