24小时咨询热线

15001981623

移动看房

您当前的位置: 首页 > 写字楼 > 静安区达邦协作广场

静安区达邦协作广场写字楼出租

100m²以下 100-200m² 200-400m² 400-600m² 600-800m² 800-1000m²
租金:7元/㎡起
售价:暂无数据

免费订阅楼宇价格信息

静安区达邦协作广场写字楼出租信息

竣工时间 2015年 总楼层 33 等级 甲级
开发商 暂无数据 物业公司 第一太平宝矿物业管理(上海)有限公司 物业费 31元/㎡月
停车位 800 车位费 600元/月 电梯配置 客梯12部,货梯2部
净层高 3.2 建筑面积 暂无数据 得房率 暂无数据
空调开放时间 周一至周五:8:00至19:00;周六:8:00至13:00 周边公交 768路;41路; 64路; 104路; 109路; 185路; 301路; 324路; 741路; 845路; 927路; 955路 周边地铁 地铁1/3/4/12/13号线

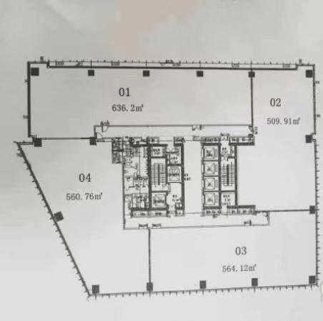
静安区达邦协作广场在租户型

  • 面积:0.00㎡

  • 面积:0.00㎡

静安区达邦协作广场最新租售动态

更多动态 >

项目面积: 3000平方室内格局:朝向朝南,方形带有隔断,采光很好,房型相当正气,宽敞舒适。装修情况:精装修,实拍图上可见。项目租金:12元/m²/天(可谈)付/款方式:押三付一合同年限:二年起签看房时间:看房方便,提前预约即可。还有其他大小面积出租 您的舒适办公梦想从拨通我的电话开始...

项目面积: 3000平方室内格局:朝向朝南,方形带有隔断,采光很好,房型相当正气,宽敞舒适。装修情况:精装修,实拍图上可见。项目租金:12元/m²/天(可谈)付/款方式:押三付一合同年限:二年起签看房时间:看房方便,提前预约即可。还有其他大小面积出租 您的舒适办公梦想从拨通我的电话开始...

项目面积: 3000平方室内格局:朝向朝南,方形带有隔断,采光很好,房型相当正气,宽敞舒适。装修情况:精装修,实拍图上可见。项目租金:12元/m²/天(可谈)付/款方式:押三付一合同年限:二年起签看房时间:看房方便,提前预约即可。还有其他大小面积出租 您的舒适办公梦想从拨通我的电话开始...

尊敬的客户您好为了保持对您的服务质量,为了避免给您匹配不合适房源,请来电说明您的需求,包括您对写字楼的档次,价格,地段,面积,户型,周边配套是否装修,以及您所中意的楼盘和近期已看过的楼盘,这样可高效精准配对,不浪费您宝贵时间。1、大厦名称;中港汇  所属静安区上海火车站汉中路商圈。2、可租面积;本案1000㎡3、租金/物业费 ;面议/物业费32元每平方每日。4、室内状况;本案开发商定制全...

静安区达邦协作广场周边配套

搜索到条记录

静安区达邦协作广场楼盘问答有问必答,为您置业保驾护航!

静安区达邦协作广场预约楼盘服务

获取最新楼盘动态、一手楼盘美图、免费专车接送等服务
万/套

静安区达邦协作广场周边楼盘

转载声明:转载本站上海办公室租售网原创文字内容、图片、视频和全景看房,请注明出处和作者。

免责声明:本站转载的上海写字楼租赁相关内容均注明出处和作者,但并不意味着赞同其观点或证实其内容的真实性,如转载内容涉及版权事宜,请联系本站删除。

24小时咨询热线

15001981623